<< back to home page   

Studio Model


3D View


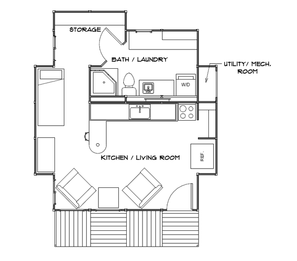
Floor Plan (400 sq. ft.)

Kitchen View

Bathroom View

<< back to home page  

 
Additional solutions by SOS Enterprise:  Storage Solutions | Specialty Solutions