<< back to home page   

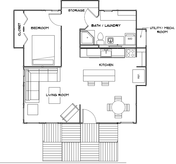
1 Bedroom Model


3D View


Floor Plan (610 sq. ft.)

Kitchen View

Bathroom View

<< back to home page  

 
Additional solutions by SOS Enterprise:  Storage Solutions | Specialty Solutions